Zadejte město

Výběr Dispozice

Omezit cenu

0 Kč - 110000 Kč

Zadejte město

Výběr Dispozice

Omezit cenu

0 Kč - 10000 Kč

Zadejte město

Výběr Druh

0 - 110140

Omezit Výměra

0 - 110140

Omezit cenu

0 Kč - 77250000 Kč
MgA. Sandra Poláková Kontaktovat

Popis

Ikona Výměra Výměra 119 m2 Ikona K nastěhování K nastěhování Ikona kalendář 30. 09. 2025
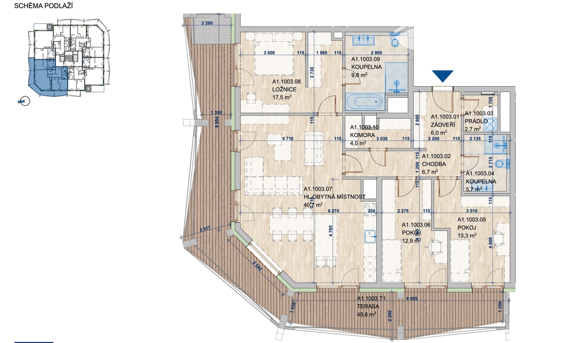
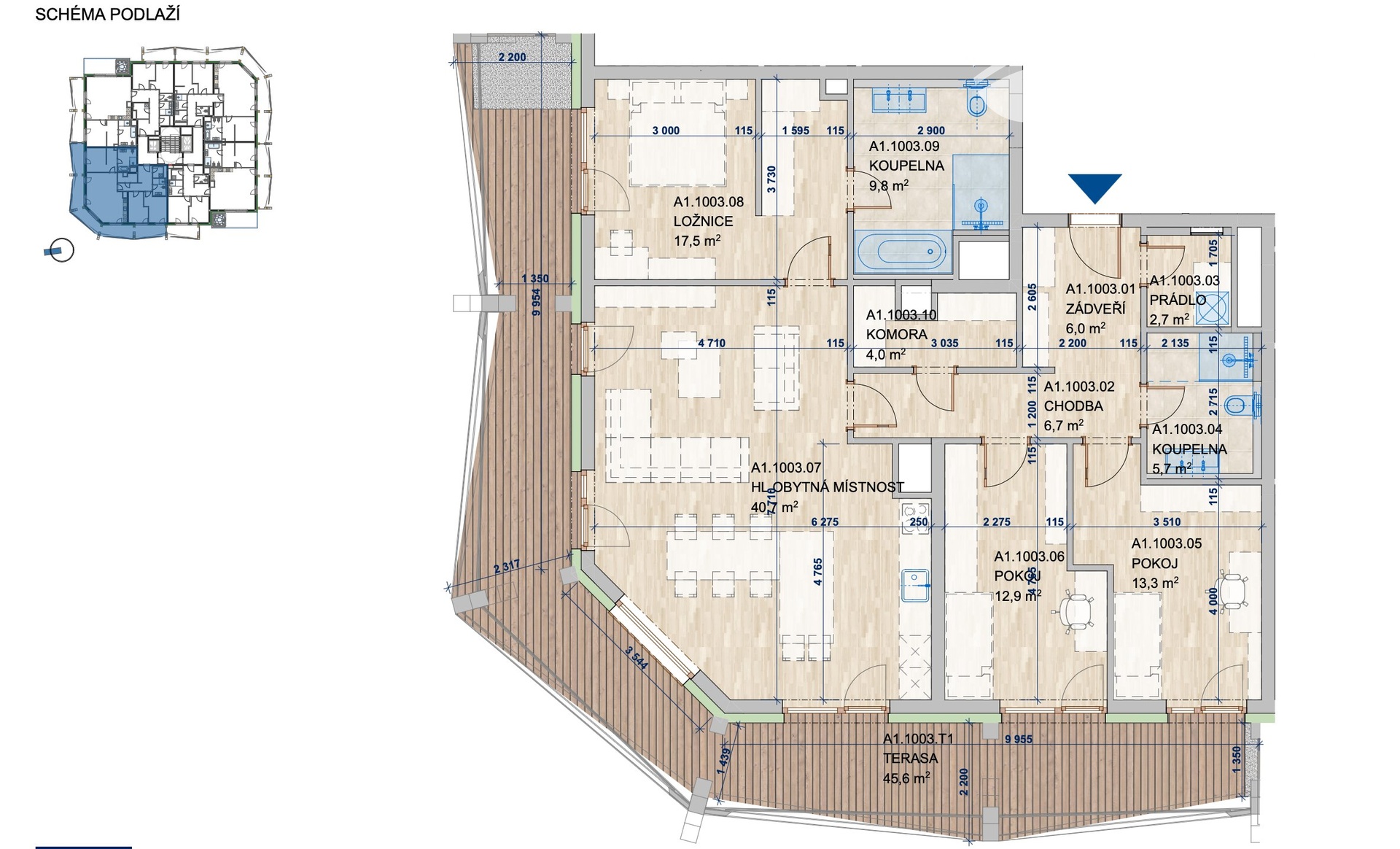
Hledáte nadstandardní bydlení, které nabízí prostor, komfort, soukromí – a k tomu dechberoucí výhled? Tento moderní byt 4KK 170 m², umístěný v 10. podlaží, Vás nadchne úchvatnou vyhlídkou na celé Brno a jeho dominanty. Městské panorama budete mít doslova jako na dlani – ve dne i v noci. Byt se nachází v prestižním projektu Allrisk MERIDIEM, který vzniká na rozhraní ulic Svatopetrská a Komárovská, v dynamicky se rozvíjející čtvrti Trnitá. Tato lokalita je součástí největší urbanistické proměny v historii Brna, která propojuje moderní architekturu s novým životním stylem v blízkosti centra města. Projekt nabízí ideální kombinaci klidného prostředí, městské infrastruktury a vynikající dopravní dostupnosti. Součástí bytu je také terasa o celkové ploše 45,6 m², ideální pro relaxaci, slunění nebo setkávání s přáteli. Tento byt je perfektní volbou pro ty, kteří si potrpí na kvalitu, styl a výjimečný životní prostor. Byt se nachází v budově A1, která se pyšní výjimečným hlavním vstupem, který podtrhuje celkový luxus projektu. Vstupní prostor je obložen velkoformátovými obklady a doplněn reprezentativním vysokým stropem o výšce 5 metrů, což vytváří působivý dojem hned při příchodu. Atmosféra elegantního lobby umocňuje celkový prestižní charakter celé novostavby. HLAVNÍ BENEFITY S PUNCEM LUXUSU: - velkorysý obývací prostor (40,8 m²) plynule navazuje na elegantní kuchyňský kout – ideální pro rodinný život i reprezentativní společenské chvíle - hlavní ložnice s vlastní šatnou a koupelnou – vybavenou velkoformátovými obklady, vanou, sprchovým koutem, toaletou a designovým zařizovacím vybavením. Použity byly kvalitní materiály a prvky prémiových značek jako Villeroy & Boch a Hansgrohe. - druhý a třetí pokoj nabízejí flexibilní využití – ložnice, pracovna či dětský pokoj - druhá koupelna se sprchovým koutem a WC zajišťuje komfort pro každodenní provoz i hosty - praktická prádelna diskrétně oddělená od obytné části - elektrické žaluzie ve všech místnostech pro pohodlnou regulaci světla a soukromí - klimatizace pro maximální tepelný komfort v letních měsících - velká francouzská okna - velkoformátové prosklené plochy přinášejí dostatek denního světla a vytvářejí přirozené propojení interiéru s venkovním prostorem, což umocňuje pocit vzdušnosti a volnosti v celém bytě. BYT DISPONUJE ROZLEHLOU TERASOU O VELIKOSTI 45,6 M²: - přístup z obývacího pokoje i obou ložnic - nabízí dostatek místa na posezení a relax - díky orientaci do dvou stran zajišťuje světlo po celý den a příjemné soukromí V CENĚ BYTU - klimatizace - elektrické žaluzie - koupelny jsou vybaveny kvalitní sanitární technikou značky Villeroy & Boch a designovými bateriemi Hansgrohe, které zaručují vysoký komfort a nadčasový vzhled. - velkoformátové obklady v koupelně - kuchyňská linka se spotřebiči LOKALITA: - výborná dostupnost MHD, centrum Brna za pár minut - skvělá a rychlá dostupnost autem na dálnici směr Praha, Vídeň i Ostrava - rekreační možnosti: cyklostezka, biotop, sportovní centrum, parky - kompletní občanská vybavenost v docházkové vzdálenosti (potraviny, lékárna, školky, školy atd. ) - Součástí klidného vnitrobloku zahrady je i dětské hřiště, které potěší každou rodinu Byt nabízí maximální pohodlí pro rodinu i náročného jednotlivce. Nachází se v klidné a moderní lokalitě s výbornou dostupností do centra města. ZAUJALA VÁS TATO NABÍDKA? Neváhejte mě kontaktovat prostřednictvím formuláře u této nabídky – po jeho vyplnění Vás budu co nejdříve kontaktovat. Ráda Vám jednotku na schůzce podrobně představím, doplním všechny užitečné informace a zajistím osobní prohlídku. Společně projdeme vše důležité, abyste si mohli udělat jasnou představu, zda je tato nemovitost tou pravou volbou právě pro Vás. Věřím, že Vás tato byt zaujme, a pokud by přece jen nesplňovala všechna Vaše očekávání, ráda Vám představím i další vhodné možnosti k pronájmu či koupi v rámci objektu. K NASTĚHOVÁNÍ: od září 2025 CENA NÁJMU: na vyžádání. Neváhejte mě kontaktovat prostřednictvím formuláře u této nabídky – ráda Vám poskytnu veškeré informace a zodpovím Vaše dotazy. KATEGORIE: Pronájem, novostavba, byt LOKALITA: Brno – Komárovská UŽITNÁ PLOCHA: 165,1 m² (včetně terasy o ploše 45,6 m²) UMÍSTĚNÍ JEDNOTKY: 10. nadzemní podlaží – nádherný výhled na celé Brno ORIENTACE BYTU: jihozápadní – ideální pro dostatek denního světla a krásné západy slunce PARKOVACÍ STÁNÍ: možnost pronájmu až dvou parkovacích stání, která se nachází přímo v domě, v 1. podzemním podlaží – pohodlný a bezpečný přístup výtahem přímo k bytu. SKLEPNÍ KOJE: možnost pronájmu

Vybavení

Ikona Výtah Výtah Ikona Terasa Terasa

Další vybavení

Ikona Bezbariérový Bezbariérový

Lokalita

© 2025 Pronájem.cz, s.r.o.
by Media Heroes