Makers Reality Kontaktovat

Pronájem dům | 255 m 2
Praha, Nebušice, Nebušická

110 000 Kč/měsíc
Ikona Výměra Výměra 255 m2 Ikona K nastěhování K nastěhování Ikona kalendář 15.4.2025
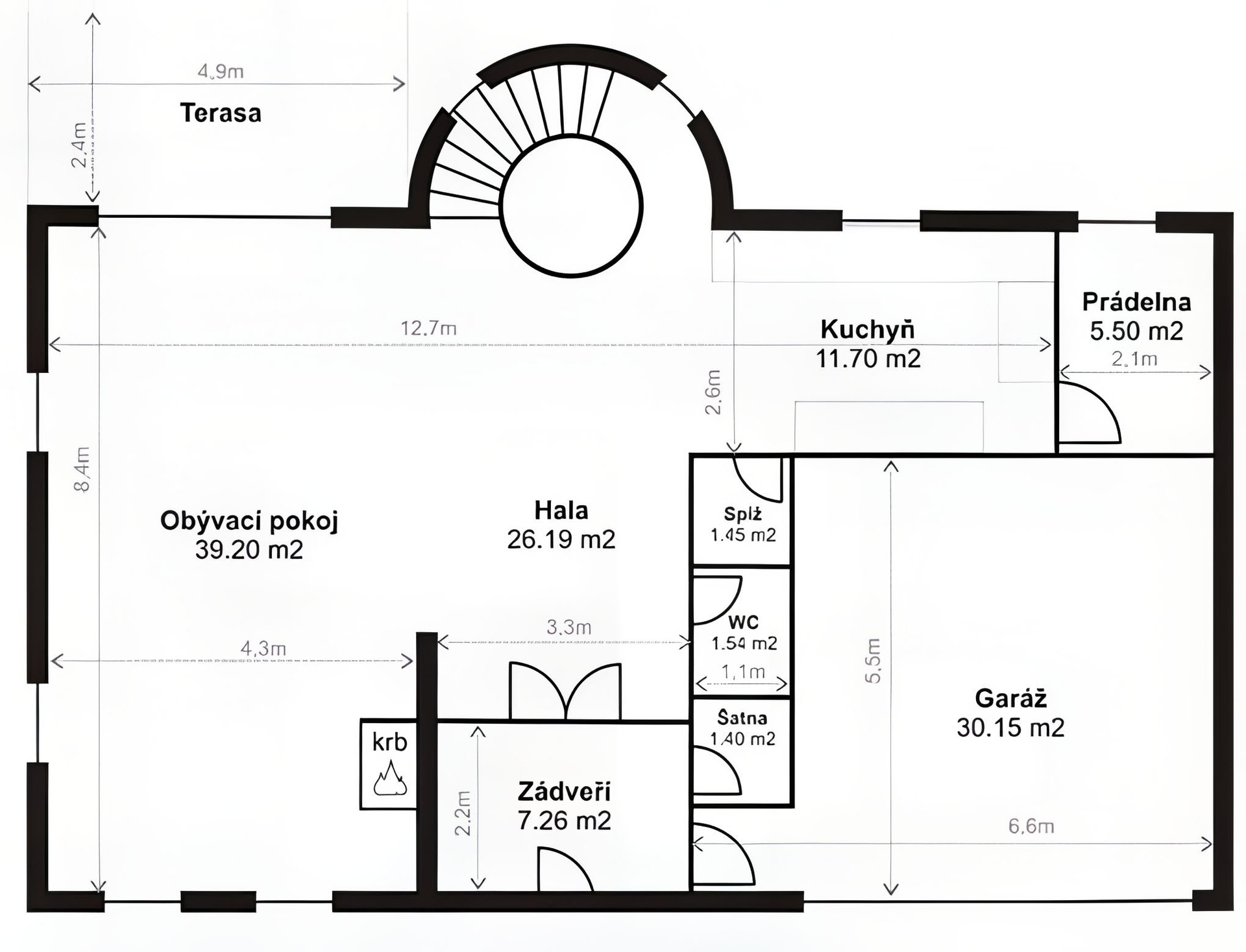
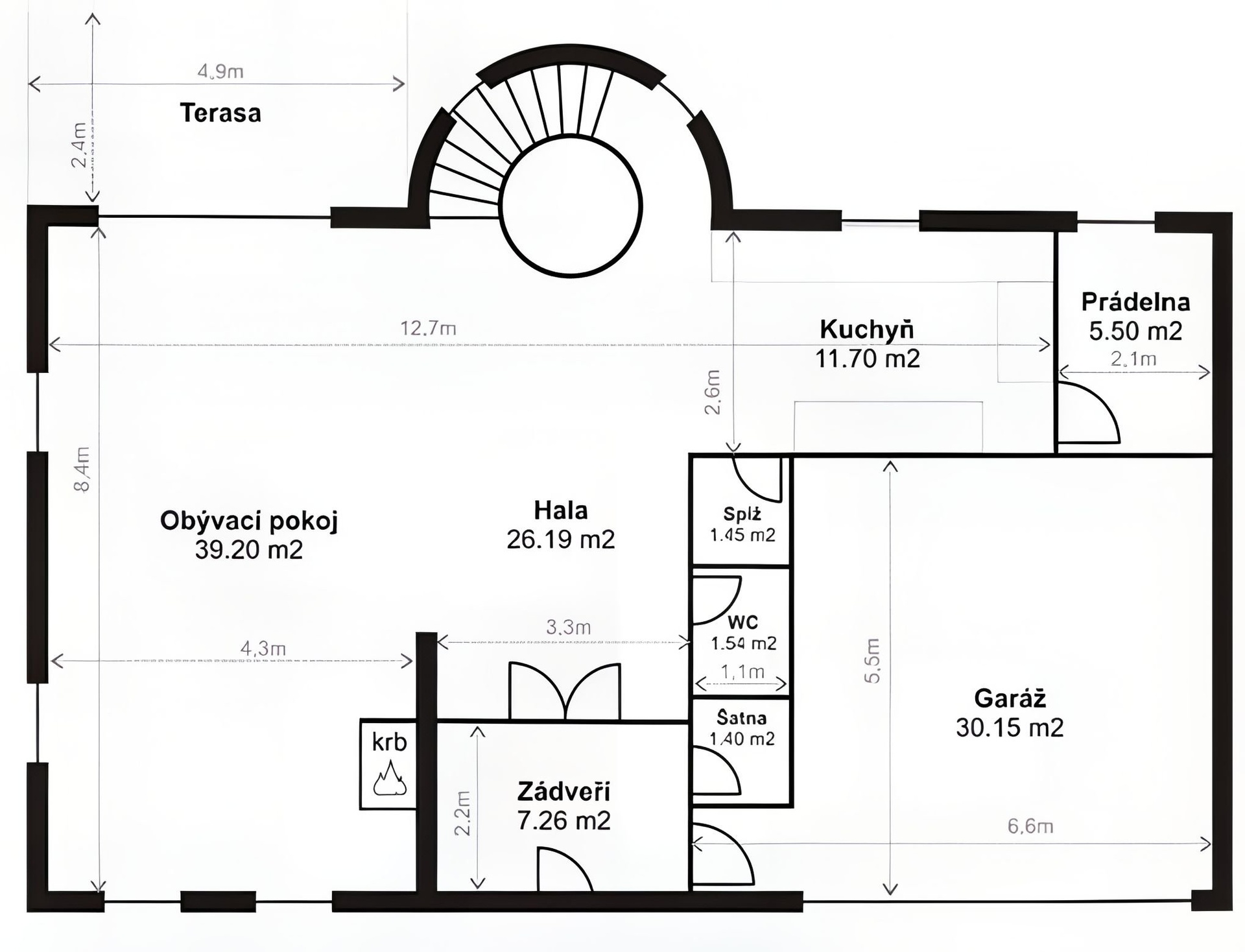
ID zakázky: V3555-1 Stylová samostatně stojící vila se nachází v prestižním uzavřeném areálu v pražských Nebušicích. Nabízí obytnou plochu 243 m², dvojgaráž a terasu o rozloze 12 m². K vile náleží soukromá zahrada, jejíž součástí je vyhřívaný bazén o rozměrech 5 x 3,1 x 1,5 m. V prestižním rezidenčním areálu Villas Šárka o rozloze 5 500 m² je umístěno celkem sedm moderních rodinných vil, z nichž každá nabízí obytnou plochu 243 m², dvougaráž a terasu o velikosti 12 m². Součástí každé vily je i soukromá zahrada s vyhřívaným bazénem, ideální pro odpočinek i aktivní relaxaci. Vily se čtyřmi ložnicemi jsou navrženy s důrazem na pohodlí a moderní standardy bydlení – nechybí podlahové vytápění ani klimatizace. Vysoký standard bydlení doplňují tři elegantní koupelny a tři toalety, z nichž dvě jsou samostatné. Plně zařízená kuchyně je vybavena sklokeramickou varnou deskou, horkovzdušnou troubou, myčkou, lednicí s mrazákem a digestoří. Otevřený koncept propojuje kuchyň s prostorným obývacím pokojem, jehož dominantou je krb a přímý vstup na zahradu. Rezidenční projekt „Villas Šárka“ se nachází v bezprostřední blízkosti prestižní mezinárodní školy The International School of Prague. V okolí je k dispozici kompletní občanská vybavenost – základní a mateřská škola, zdravotní středisko, obchody, sportovní hala, tenisové kurty a golfový klub. Milovníky přírody potěší blízkost chráněné krajinné oblasti Divoká Šárka. Kompletní městskou infrastrukturu nabízí nedaleké centrum Dejvic. Nájemné je ve výši 110.000,- Kč K nastěhovaní ihned. Jelikož není známa energetická třída PENB, v souladu s novelou zákona 406/2000 uvádíme energetickou třídu G. Pro více informací a sjednání prohlídky kontaktujte prosím realitního makléře.
Zobrazit celý popis

Vybavení

Ikona Terasa Terasa

Lokalita

© 2026 Pronájem.cz, s.r.o.
by Media Heroes