Ing. Michal Macháček Kontaktovat

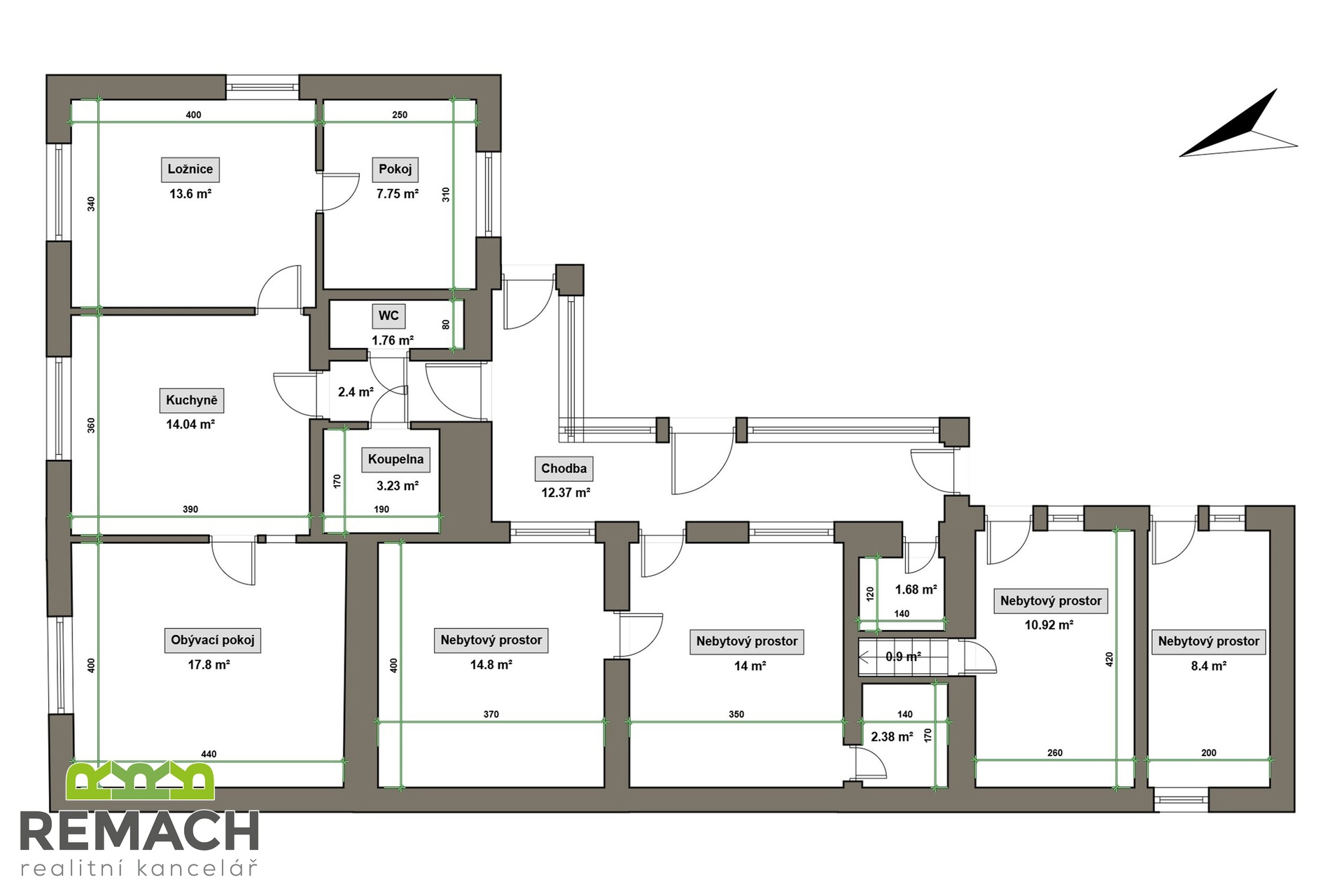
Pronájem dům | 73 m 2

12 500 Kč/měsíc + zálohy 500 Kč na vodu a 1.500 Kč elektřinu. Plyn si přepisuje nájemce na sebe, doporučená záloha 2.500 Kč
Ikona Výměra Výměra 73 m2 Ikona kalendář 15.4.2026 Ikona Zařízený Zařízený
Samostatně stojící rodinný dům o dispozici 3+1 v klidné části obce Podolí. Dům s užitnou plochou 73 m² je situován na prostorném pozemku o celkové výměře 786 m², který poskytuje dostatek místa pro odpočinek, zahradničení i volnočasové aktivity. Nemovitost prošla úpravami – dům je zateplený, což výrazně přispívá k nižším nákladům na energie a celkovému komfortu bydlení. Dům je napojen na veřejný vodovod, velkou výhodou je pak vlastní studna, která zajišťuje nezávislý zdroj vody. Vytápění je řešeno kombinací tuhých paliv a plynového kotle, takže si nájemník může zvolit ekonomicky nejvýhodnější variantu dle svých preferencí. Samozřejmostí je provedená revize komínů, což přináší bezpečný a bezproblémový provoz. Dispozice 3+1 nabízí praktické a pohodlné uspořádání místností – ideální jak pro rodinu, tak i pro pár, který hledá více prostoru. Dům působí útulným dojmem a nabízí příjemné bydlení s dostatkem soukromí. Za domem je k dispozici parkování, což zajišťuje pohodlí i bezpečí pro vaše vozidlo. Velikost zahrady navíc nabízí široké možnosti využití – od posezení s rodinou či přáteli až po drobné pěstování. Tato nemovitost je ideální volbou pro zájemce, kteří hledají klidné bydlení mimo ruch města, ale zároveň s dobrou dostupností do Hradiště a okolních obcí. Pro více informací nebo sjednání prohlídky mě neváhejte kontaktovat.
Zobrazit celý popis

Vybavení

Ikona Terasa Terasa

Lokalita

© 2026 Pronájem.cz, s.r.o.
by Media Heroes