František Havíř Kontaktovat

Pronájem 5 a více | 268 m 2
Praha, Žižkov, Cimburkova

65 000 Kč/měsíc Včetně poplatků. Energie dle spotřeby. Zdarma kryté parkovací stání., + provize RK
Ikona Výměra Výměra 268 m2 Ikona K nastěhování K nastěhování Ikona kalendář 1.2.2026 Ikona Zařízený Zařízený
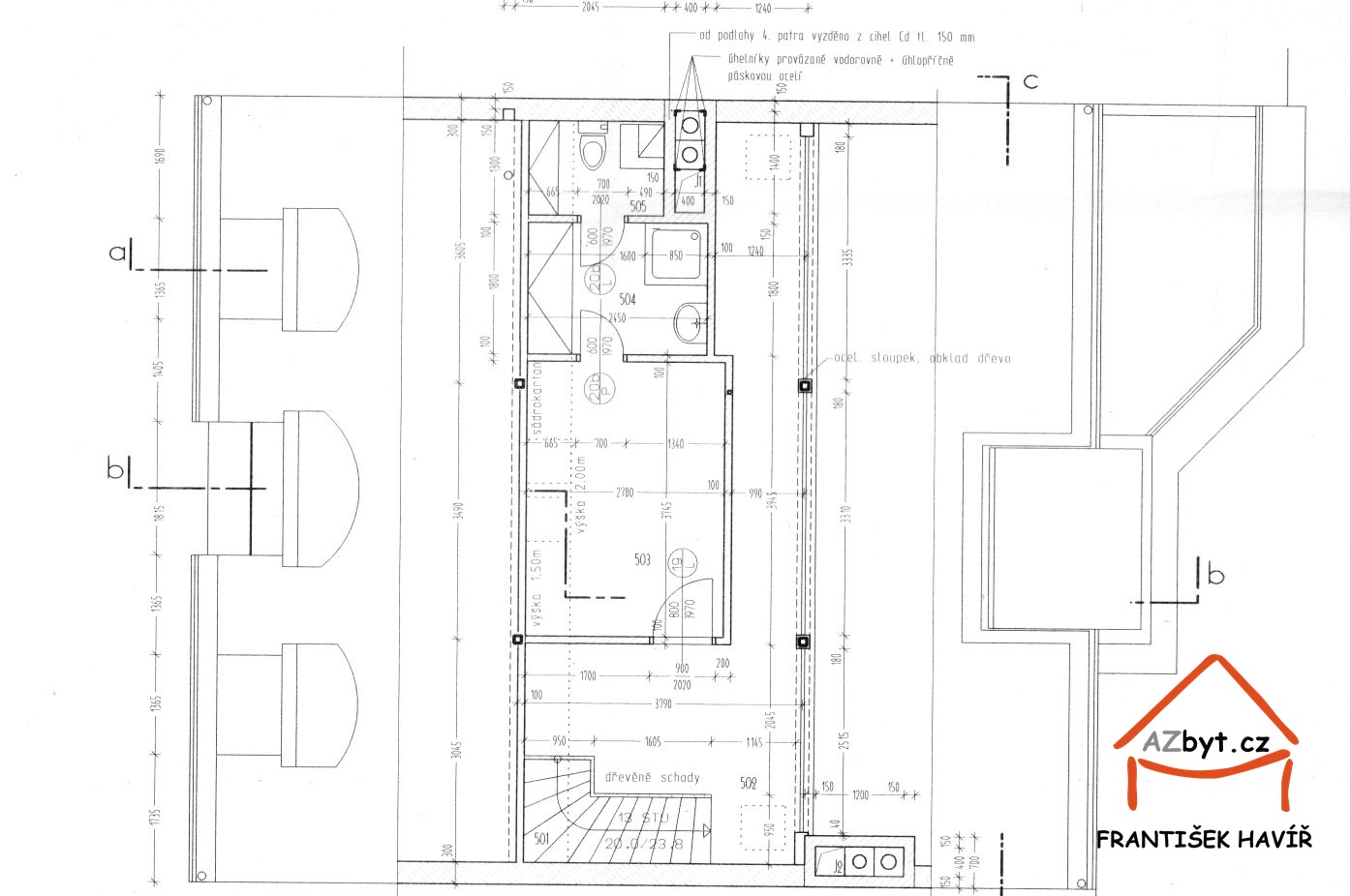
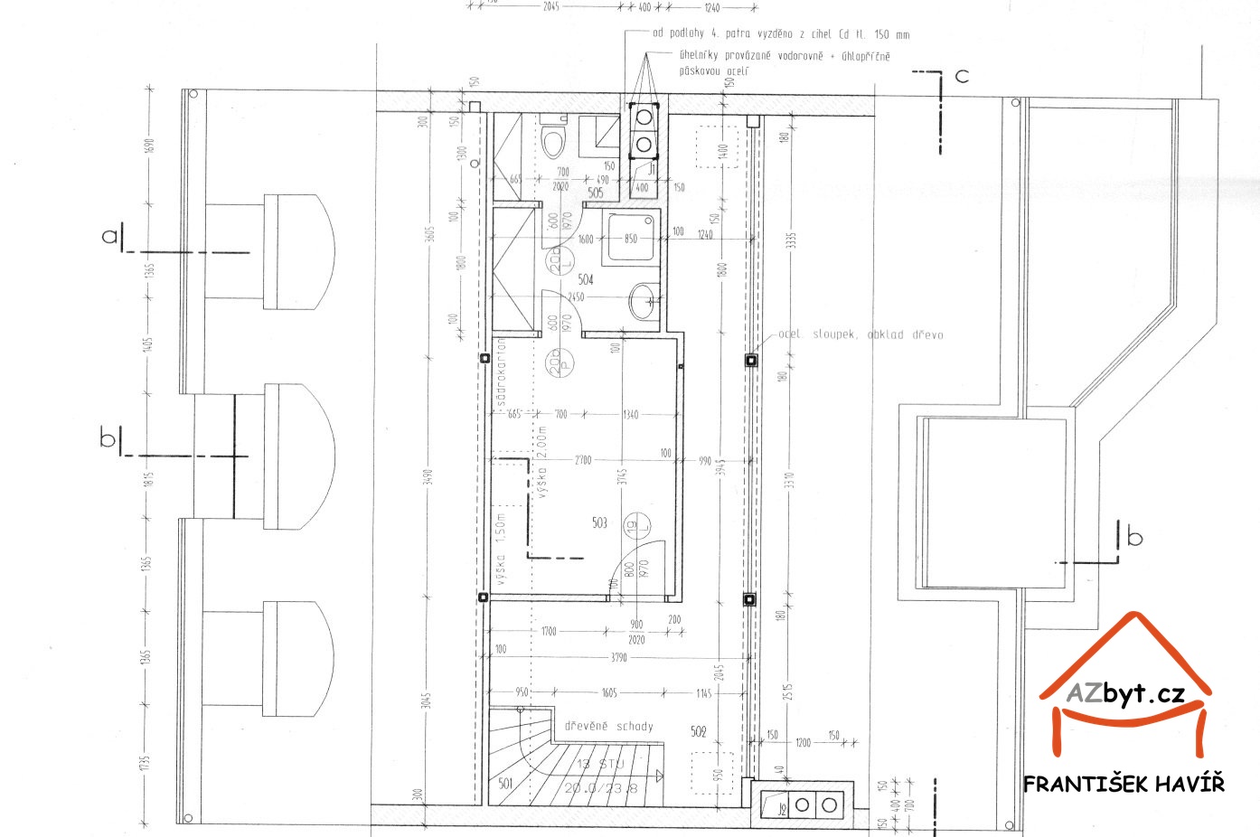
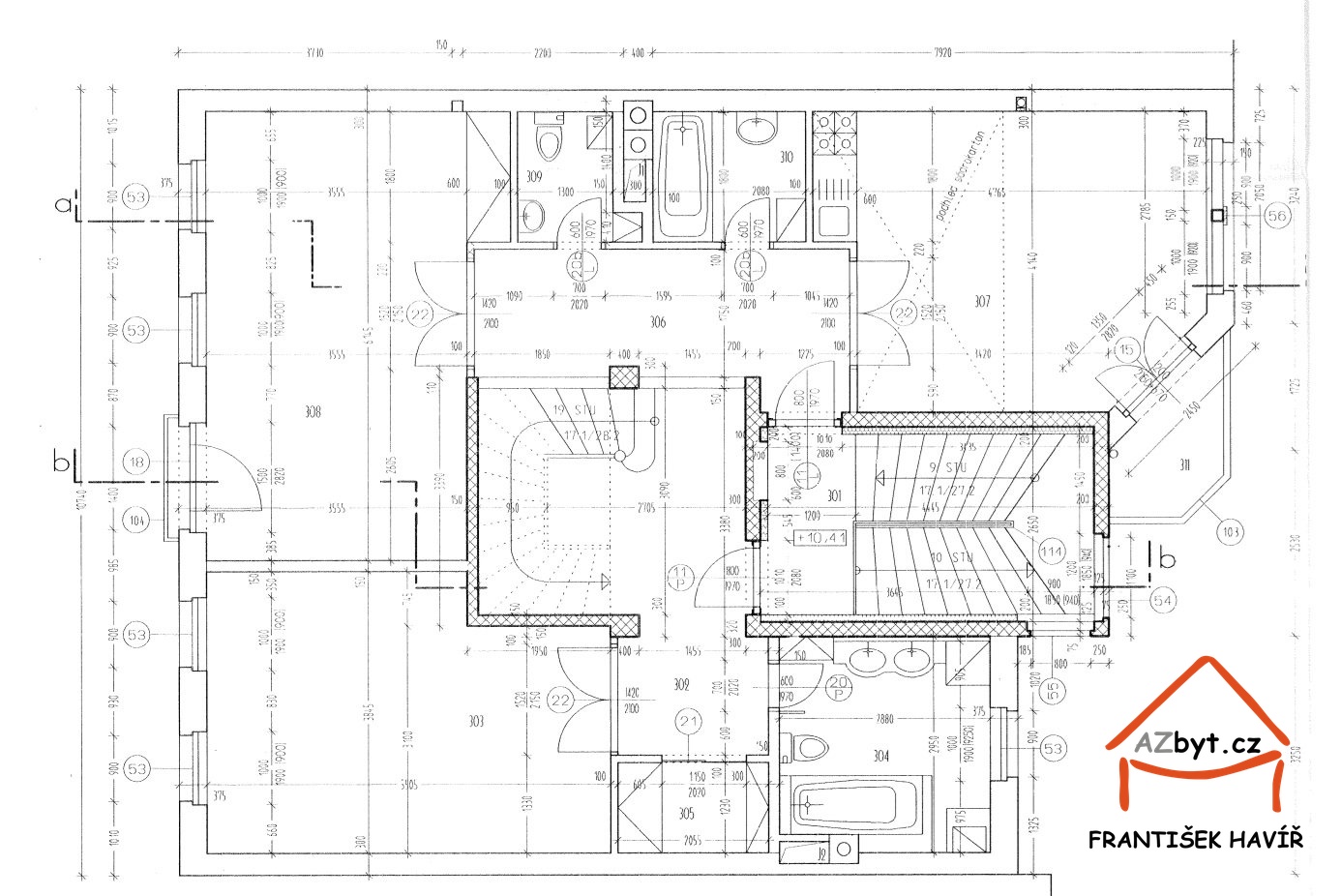
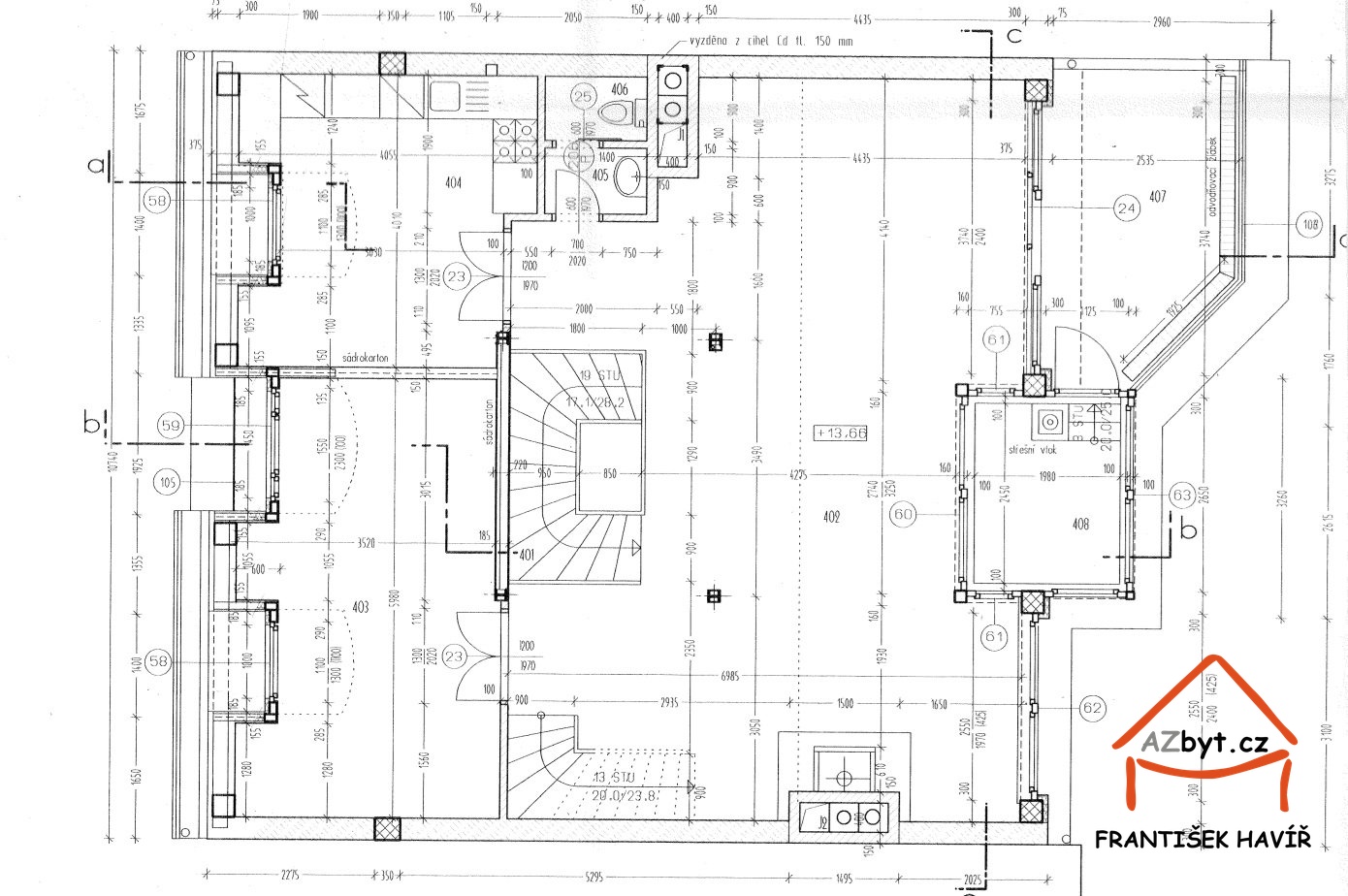
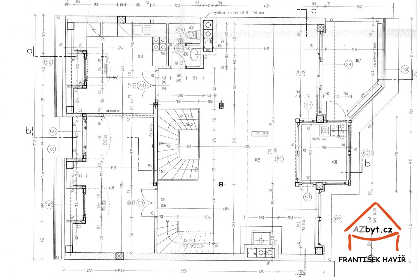
Nabízím k dlouhodobému pronájmu pěkný mezonetový byt o užitné ploše cca 268 m2 (dvě podlaží + galerie), který se nachází ve 3. a 4. patře cihlového domu, 5 minut od centra města. (Ve třetím patře je možné oddělit samostatný byt 2+kk, cca 50 m2 a pronajmout mezonet o ploše cca 218 m2 za 45 000 Kč měsíčně včetně poplatků + energie dle spotřeby.) Byt se zimní zahradou a terasou s panoramatickým výhledem (Pražský hrad, Vítkov) je kompletně zařízen (fotografie) včetně nově vybavené kuchyně a nových matrací. Dolní podlaží tvoří tři pokoje (20+20+22 m2), 2x koupelna, 2x toaleta, šatna, balkon, technická místnost, předsíň a schodiště. Horní podlaží se skládá z prostorného obývacího pokoje (57 m2) s krbem, zimní zahrady, terasy, kuchyně, pracovny a toalety. Vstup po dřevěném schodišti na galerii s pokojem, koupelnou a toaletou. Dispozice na přiložených půdorysech. Vytápění bytu a ohřev vody zajišťují tři plynové kotle, v technické místnosti automatická pračka. Na podlahách parkety a dlažba. Možnost internetu. Prostory jsou kolaudované jako byt, ale lze je využít pro sídlo firmy včetně bydlení apod. (ne ke krátkodobým pronájmům). Zdarma kryté parkovací stání ve dvoře domu. V domě není výtah. Preferujeme nájemce bez zvířat. Prostory budou připraveny k pronájmu počátkem února 2026. (Průkaz energetické náročnosti budovy zatím nebyl dodán, dle zákona proto uvádím energetickou třídu G.)
Zobrazit celý popis

Vybavení

Ikona Výtah Výtah Ikona Balkon Balkon Ikona Terasa Terasa

Lokalita

© 2026 Pronájem.cz, s.r.o.
by Media Heroes