Ing. Michaela Čermáková Kontaktovat

Pronájem 4+kk | 130 m 2
Brno, Černá Pole, Merhautova 952

33 500 Kč/měsíc + 9000 Kč zálohy na služby a energie + kauce + provize
Ikona Výměra Výměra 130 m2 Ikona K nastěhování K nastěhování Ikona kalendář 1.3.2026
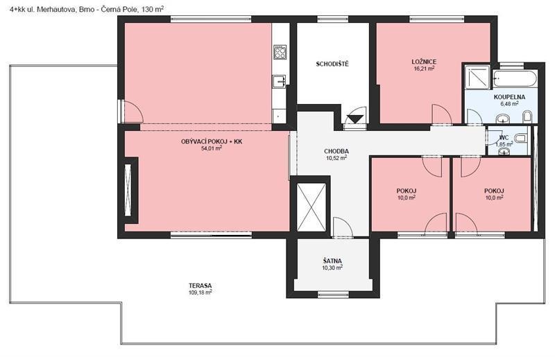
Ve výhradním zastoupení majitele nabízíme k pronájmu luxusní byt o dispozici 4+kk v žádané lokalitě Brno - Černá Pole, ulice Merhautova. Byt se nachází v 6. patře s výtahem přímo do bytu, k dispozici prostorná terasa s úžasnými výhledy na celé Brno. Venkovní parkovací stání za domem je součástí pronájmu. Bytový dům je označen energetickou třídou C - úsporný. Moderní bílá kuchyňská linka s antracitovou pracovní deskou je vybavená veškerými vestavnými spotřebiči - sklokeramická varná deska, horkovzdušná trouba, mikrovlnná trouba, digestoř, myčka nádobí, lednice a mraznička. Stůl se šesti židlemi v jídelní části. Koupelna má jak vanu, tak sprchový kout a WC, druhé WC s umyvadlem je samostatné. Dvě prostorné zrcadlové skříně v chodbě bytu, botník, šatní stěna. V celém bytě je dlažba s dekorem mramoru, topení podlahové. Obývací část, ložnice a dětské pokoje/pracovny jsou bez vybavení. Pokoje mají klimatizační jednotky zajišťující příjemnou teplotu v horkých letních dnech. Samostatná technická místnost s vlastním kotlem a přípojkou na pračku a sušičku. Možnost vysokorychlostního internetu. Vyhrazené venkovní parkování v ceně, další možnost pohodlného parkování je k dispozici - garážového stání za příplatek 2.500,- Kč. Žádaná lokalita s veškerou občanskou vybaveností, restaurace, kavárny, obchůdky, park s dětským hřištěm, zastávka MHD - vše v pěší vzdálenosti, do centra cca 15 min. chůze. K dispozici od 1.3.2026. Prohlídky možné po domluvě s uvedeným makléřem. Možnost jednorázového nebo pravidelného úklidu naší úklidovou firmou.
Zobrazit celý popis

Vybavení

Ikona Výtah Výtah Ikona Sklep Sklep Ikona Terasa Terasa

Lokalita

© 2025 Pronájem.cz, s.r.o.
by Media Heroes