Makers Reality Kontaktovat

Pronájem 3+1 | 83 m 2
Praha, Kamýk, Zárubova

28 900 Kč/měsíc
Ikona Výměra Výměra 83 m2 Ikona kalendář 15.12.2025 Ikona Zařízený Zařízený
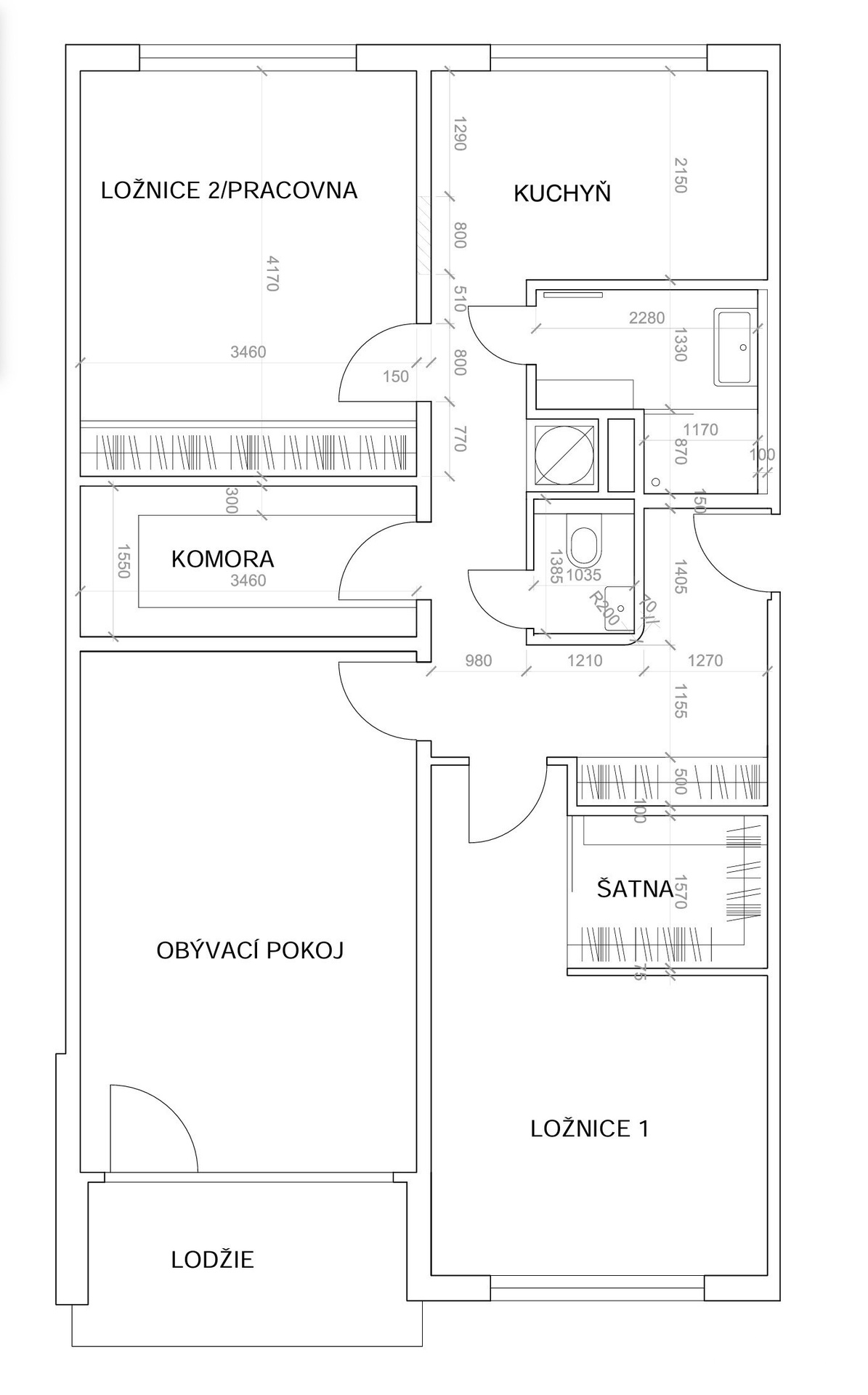
Evidenční číslo / ID zakázky: D2008 Nabízíme k pronájmu světlý, kompletně a kvalitně zrekonstruovaný a plně zařízený byt o dispozici 3+1 a celkové ploše 83 m². Nachází se v 7. nadzemním podlaží z celkových 8 udržovaného panelového domu s výtahem. Vyšší patro zajišťuje nejen klid a soukromí, ale také krásné panoramatické výhledy na Lhotecký les a působivé západy slunce. Byt je ideální volbou pro jednotlivce, pár či menší rodinu, kteří hledají moderní, komfortní bydlení s velkorysými prostory a dostatkem úložných míst. Kombinace klidného prostředí plného zeleně a kompletní občanské vybavenosti v docházkové vzdálenosti vytváří velmi příjemné místo pro každodenní život. Dispozičně byt nabízí obývací pokoj se západně orientovanou lodžií, ideální pro večerní relax, dále novou sedací soupravu s elektrickým výsuvem. Hlavní ložnice disponuje vlastní walk-in šatnou a postelí, druhý pokoj orientovaný na severovýchod lze využít jako ložnici nebo pracovnu, což ocení zejména ti, kteří pracují z domova. Součástí bytu je samostatná plně vybavená kuchyně s lakovanou kuchyňskou linkou a vestavnými spotřebiči Whirlpool včetně myčky, prostorná koupelna, oddělené WC, nadstandardně velká komora a množství praktických úložných řešení. Byt se vyznačuje nadstandardním provedením a použitím kvalitních materiálů – odhlučněné dveře Sapeli, sanitární vybavení Villeroy & Boch, přenosná klimatizační jednotka, podlahové vytápění v koupelně a radiátory s chytrým dálkovým ovládáním prostřednictvím aplikace. Rychlé internetové připojení zajišťuje Vodafone prostřednictvím optického kabelu s rychlostí 1 000 Mbit/s (s možností navýšení až na 2 000 Mbit/s). Významnou předností je klidné bydlení v zeleni spolu s možností bezproblémového parkování v okolí. Dům je po rekonstrukci, společné prostory jsou nepřetržitě monitorovány kamerovým systémem. V suterénu je k dispozici zabezpečená kočárkárna a kolárna. Lokalita nabízí velmi dobrou dopravní dostupnost autem i městskou hromadnou dopravou, v blízkosti se nachází několik autobusových linek. Stanice metra Kačerov (linka C) je dostupná do 15 minut. Velkou předností je také kompletní občanská vybavenost v bezprostředním okolí. Přímo za domem se nachází dvě dětská hřiště a lékárna, v pěší dostupnosti je přírodní park Modřanská rokle, ideální pro procházky, sport i relaxaci v zeleni. V blízkosti je dále mateřská škola, základní škola, supermarket Kaufland, nákupní centrum OC Novodvorská Plaza, které nabízí širokou škálu obchodů a služeb a také oblíbená vietnamská tržnice SAPA. Byt je volný k nastěhování ihned. Měsíční nájemné: 28.900 Kč + poplatky Elektřina se převádí na nájemníka. Energetická třída PENB C — úsporná. Pro více informací a sjednání prohlídky kontaktujte prosím realitního makléře.
Zobrazit celý popis

Vybavení

Ikona Výtah Výtah Ikona Lodžie Lodžie Ikona Terasa Terasa

Další vybavení

Ikona Bezbariérový Bezbariérový

Lokalita

© 2026 Pronájem.cz, s.r.o.
by Media Heroes