Michaela Blablová Kontaktovat

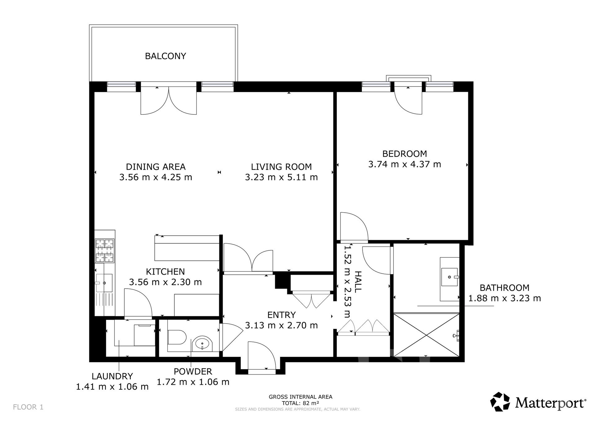
Pronájem 2+kk | 74 m 2
Praha, Jinonice, U panské zahrady 711

25 000 Kč/měsíc vratná kauce ve výši dvou měsíčních nájmů + provize za zprostředkování ve výši jednoho nájmu + DPH
Ikona Výměra Výměra 74 m2 Ikona K nastěhování K nastěhování Ikona kalendář 26.2.2026 Ikona Zařízený Nezařízený
Hledáte opravdu prostorné 2+kk s balkonem a parkováním v klidné části Prahy? Právě jste ho našli. Tento byt o nadstandardní výměře 74 m² se nachází ve 3. patře moderního domu s výtahem v ulici U Panské zahrady v Jinonicích a zaujme vás především velkorysým obytným prostorem a příjemnou atmosférou. Dominantou bytu je rozlehlý obývací pokoj s kuchyňským koutem, který nabízí dostatek místa nejen pro pohodlnou sedací soupravu, ale i plnohodnotný jídelní stůl či pracovní kout. Díky promyšlené dispozici působí prostor vzdušně a přehledně. Kuchyň je plně vybavena spotřebiči – lednicí s mrazákem, troubou, mikrovlnnou troubou, myčkou, varnou deskou i digestoří, pračka je prakticky umístěna v kuchyňské části. Ložnice poskytuje dostatek prostoru pro velkou postel i úložné řešení. Koupelna je vybavena sprchovým koutem, toaleta je samostatná, což zvyšuje komfort každodenního fungování. Příjemným bonusem je balkon, ideální pro ranní kávu či večerní relax, dále sklep a garážové stání, které je již zahrnuto v pronájmu. Jinonice patří mezi oblíbené rezidenční lokality díky kombinaci klidu, zeleně a výborné dostupnosti. Stanice metra B – Nové Butovice je přibližně 10 minut chůze od domu, v okolí najdete kompletní občanskou vybavenost – obchody, restaurace, kavárny i sportovní možnosti. Pokud hledáte skutečně prostorné a pohodlné bydlení s balkonem a vlastním parkováním v dobře dostupné části Prahy, tento byt je ideální volbou. Poplatky vč. elektřiny činí 5 029 Kč měsíčně a jsou zúčtovatelné. Provize za zprostředkování ve výši jednoho nájmu + DPH. Vratná kauce ve výši dvou měsíčních nájmů. Zaujala vás tato nabídka a bojíte se, aby vám neunikla? Nyní už nemusíte. Nabízíme vám možnost si byt pronajmout plně online. Pokud ovšem dáváte přednost osobní prohlídce, tak neváhejte a domluvte si ji. Těšíme se na setkání. Kontaktovat nás můžete kdykoliv v pracovní dny od 9:00 do 17:30.
Zobrazit celý popis

Vybavení

Ikona Výtah Výtah Ikona Sklep Sklep Ikona Balkon Balkon Ikona Terasa Terasa

Lokalita

© 2026 Pronájem.cz, s.r.o.
by Media Heroes