Zadejte město

Výběr Dispozice

Omezit cenu

0 Kč - 110000 Kč

Zadejte město

Výběr Dispozice

Omezit cenu

0 Kč - 10000 Kč

Zadejte město

Výběr Druh

0 - 110140

Omezit Výměra

0 - 110140

Omezit cenu

0 Kč - 20000000 Kč
Makers Reality Kontaktovat

Popis

Ikona Výměra Výměra 80 m2 Ikona K nastěhování K nastěhování Ikona kalendář 01. 11. 2025
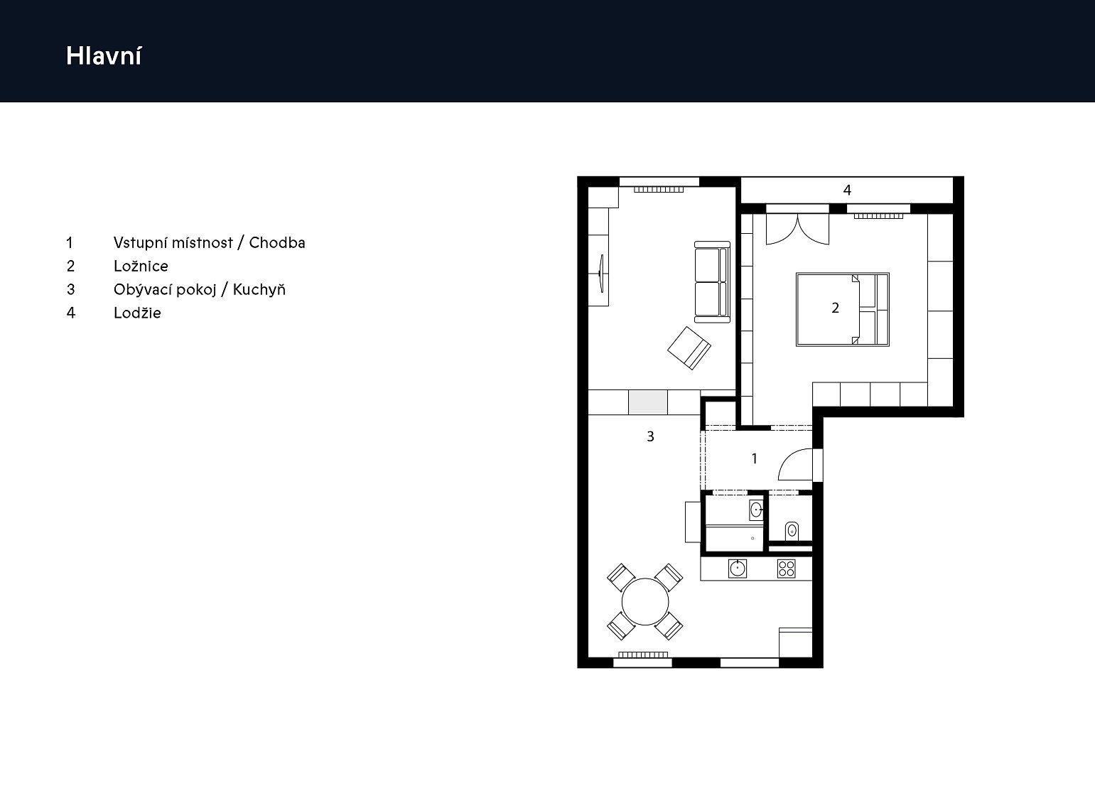
Evidenční číslo / ID zakázky: F2014 Nabízíme k pronájmu zařízený byt 2+kk o velikosti 80 m² s lodžií, který se nachází v 2.NP cihlového domu s výtahem v ulici Hlavní, Praha 10 – Záběhlice. Tento moderně řešený byt vás zaujme nejen svým industriálním designem, ale i skvělou dispozicí. Na obývací pokoj navazuje originálně řešený prostor, který kombinuje pracovní kout, relaxační zónu i jídelní část. Industriální styl je zde podtržen ocelovou konstrukcí s otevřenými policemi, která elegantně odděluje jednotlivé části místnosti, a zároveň působí vzdušně. Pracovní kout je vybaven dřevěným stolem s pohodlnou kancelářskou židlí a poskytuje dostatek místa pro práci z domova. Prostor je doplněn o úložné boxy a police. V této části se nachází také pohodlné posezení v podobě rozkládací pohovky s polštáři a designového křesla. V zadní části místnosti je jídelní kout s velkým stolem a židlemi, kde je dostatek místa pro rodinné večeře nebo posezení s přáteli. Díky oknu je prostor příjemně světlý a propojuje se s centrální obytnou částí. Stylová a moderní kuchyň v industriálním stylu, která zaujme minimalistickým designem a kvalitními materiály. Prostorná pracovní plocha, vestavěné spotřebiče a dostatek úložného prostoru zajišťují maximální pohodlí pro každodenní vaření. Velké okno dodává kuchyni dostatek denního světla a příjemnou atmosféru. Elegantní koupelna s moderním sprchovým koutem a nadčasovými černými detaily. Minimalistický design a použití kvalitních materiálů vytváří příjemnou atmosféru i praktický prostor pro každodenní využití. Velké zrcadlo a přirozené tóny podtrhují celkovou vzdušnost a styl interiéru. Dům se nachází v klidné části Záběhlic s výbornou dopravní dostupností. Přímo před domem je autobusová zastávka s přímým spojením na stanice metra Roztyly, Chodov, Kačerov, Skalka, Florenc a Smíchovské nádraží. Stanice metra C Roztyly a nákupní centrum Westfield Chodov jsou vzdáleny jen několik minut. V okolí najdete kompletní občanskou vybavenost, dětská hřiště i možnosti relaxace v Kunratickém lese nebo u Hamerského rybníka se sportovním centrem HAMR. Parkování je možné přímo před domem bez parkovacích zón. Byt bude volný k nastěhování od 1.11.2025. Měsíční nájemné: 30.000 Kč + poplatky Energetická náročnost budovy třída E Pro více informací kontaktujte prosím realitního makléře.

Vybavení

Ikona Výtah Výtah Ikona Lodžie Lodžie Ikona Terasa Terasa

Další vybavení

Ikona Bezbariérový Bezbariérový

Lokalita

© 2025 Pronájem.cz, s.r.o.
by Media Heroes