Zadejte město

Výběr Dispozice

Omezit cenu

0 Kč - 110000 Kč

Zadejte město

Výběr Dispozice

Omezit cenu

0 Kč - 10000 Kč

Zadejte město

Výběr Druh

0 - 110140

Omezit Výměra

0 - 110140

Omezit cenu

0 Kč - 77250000 Kč
Karla Hýsková Kontaktovat

Popis

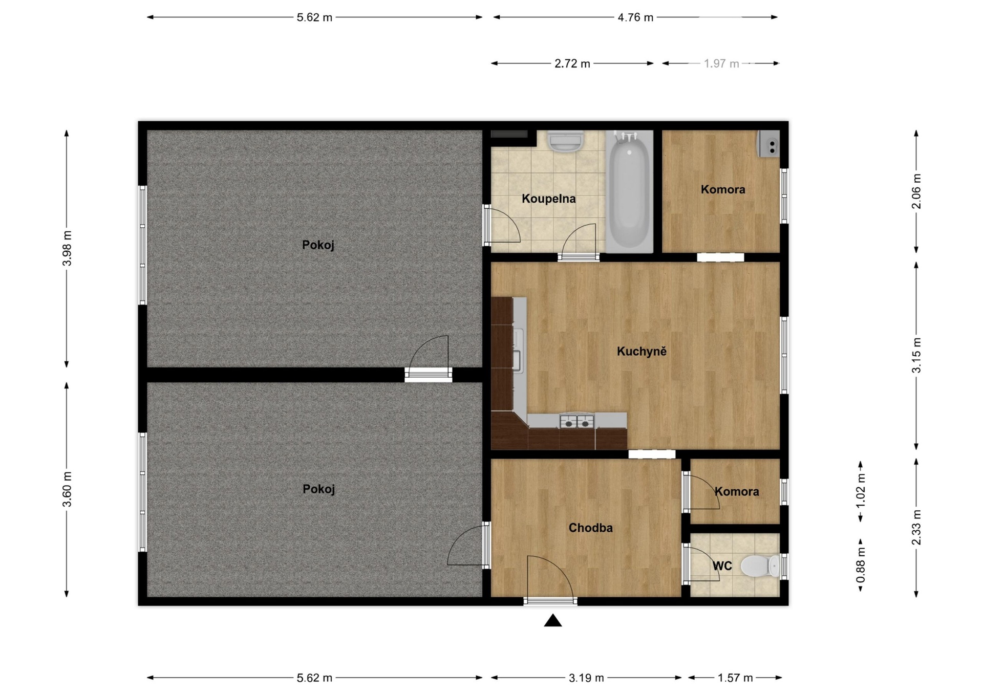
Ikona Výměra Výměra 81 m2 Ikona kalendář 18. 11. 2025
Nabízený byt je umístěný na hezkém místě v cihlovém domě na okruhu města, ulice Bratří Čapků. Byt se nachází ve 4. patře, v domě není výtah (není tedy bezbariérový). Součástí je i sklepní kóje, komora a špajz v bytě. Je možné využít zahradu ve vnitrobloku. Vybavení bytu - kuchyňská linka včetně lednice, kombinovaného sporáku, mikr. trouby a digestoře. V bytě je plynový kotel, který generuje teplo a teplou vodu. Měsíčně hradíte: nájemné 17.500 Kč + poplatky 665 Kč za 2 osoby (studená voda, el. spol prostor) + elektřina, plyn a internet. Majiteli hradíte vratnou jistotu ve výši 30.000 Kč. Provize za zprostředkování nájmu je 17.500 Kč + DPH.

Vybavení

Ikona Výtah Výtah Ikona Sklep Sklep

Lokalita

© 2025 Pronájem.cz, s.r.o.
by Media Heroes