Ing. Martin Souček Kontaktovat

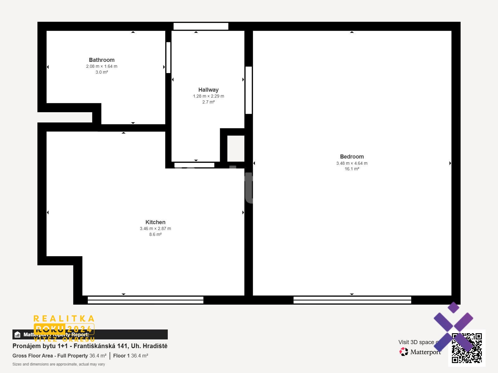
Pronájem 1+1 | 34 m 2
Uherské Hradiště, Františkánská 141

10 500 Kč/měsíc + služby a energie - měsíční poplatky 3 200 Kč
Ikona Výměra Výměra 34 m2 Ikona K nastěhování K nastěhování Ikona kalendář 1.2.2026 Ikona Zařízený Částečně zařízený
Nabízím k pronájmu byt s dispozicí 1+1 o podlahové ploše 34 m² v Uherském Hradišti. Byt se nachází v centru města na ulici Františkánská nedaleko Masarykova náměstí. - prosvětlený byt - skvělá dostupnost do centra města - k dispozici sklepní koje 2x 1m - výborná občanská vybavenost - možnost parkování u domu Jste jednotlivec či pár a hledáte pronájem bytu v Uherském Hradišti? Nabízím Vám útulný byt, který Vám padne do oka. Je situovaný ve 2. patře bytového domu, který se nachází v centru města. Byt disponuje jednou obytnou místností, která kombinuje funkci obývacího prostoru a ložnice. Koupelna se sprchovým koutem, jejíž součástí je také WC oddělené zídkou a poskytuje tak více soukromí. V chodbě je malá vestavěná skříň. Kuchyňská linka je vybavena sporákem s digestoří. Místnost nabízí prostor na jídelní stůl. Součástí je také pračka s vrchním plněním. K uskladnění potravin můžete využít odvětranou špajzku. Byt je bez dalšího nábytku, což dává novému nájemci možnost zařídit si interiér dle vlastních představ. K bytu dále náleží sklepní koje, vhodná k uložení vašich věcí. V okolí domu najdete vše co ke komfortnímu životu potřebujete. V pěší dostupnosti pak autobusové nádraží, vlakové nádraží, kino, městské divadlo, lékárnu, potraviny i restaurace. Nájemné činí 10 500 Kč měsíčně, zálohy na energie a služby 3 200 Kč měsíčně. Vratná kauce je vyčíslena ve výši 20 000 Kč. Při předání se hradí odměna za realitní zprostředkování ve výši jednoho nájmu. Budu se těšit na společné prohlídky bytu. Ing. Martin Souček, realitní makléř Explicit Reality.
Zobrazit celý popis

Vybavení

Ikona Výtah Výtah Ikona Sklep Sklep Ikona Terasa Terasa

Lokalita

© 2026 Pronájem.cz, s.r.o.
by Media Heroes