Zadejte město

Výběr Dispozice

Omezit cenu

0 Kč - 110000 Kč

Zadejte město

Výběr Dispozice

Omezit cenu

0 Kč - 10000 Kč

Zadejte město

Výběr Druh

0 - 110140

Omezit Výměra

0 - 110140

Omezit cenu

0 Kč - 20000000 Kč
Stanislava Kosíková Kontaktovat

Popis

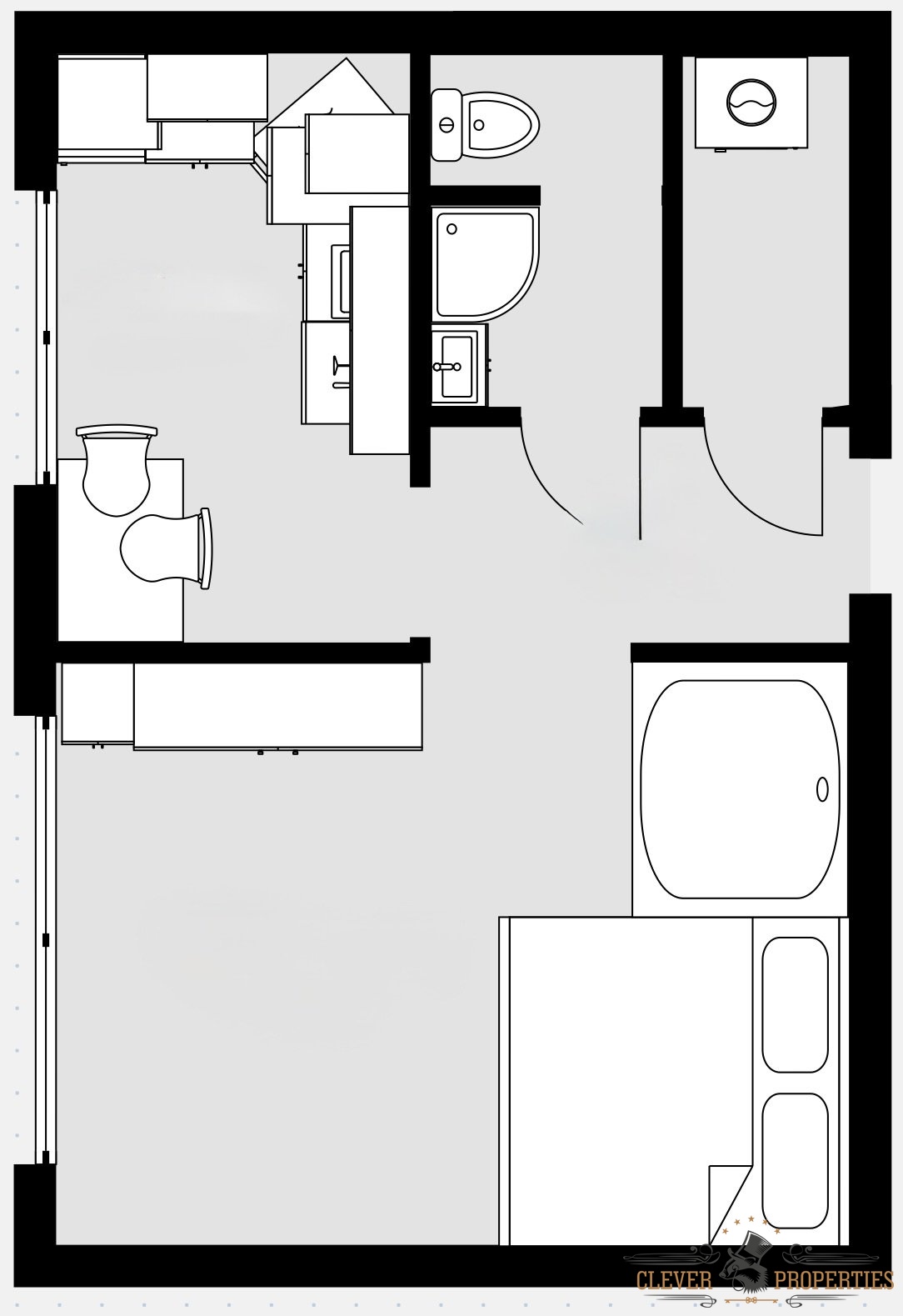
Ikona Výměra Výměra 32 m2 Ikona K nastěhování K nastěhování Ikona kalendář 15. 09. 2025
Nabízíme k pronájmu útulný a vybavený byt 1+1 a velikosti 32 m2 - ve vyhledávané části Hlinska - Ratajích. Najdete ho v udržovaném a revitalizovaném domě v 5.patře. Dům je zateplený, plastová okna, moderní výtah a má dostatek prostoru i pro parkování automobilů. Byt samotný je vybaven kuchyňskou linkou, sklokeramickým sporákem s troubou, lednicí s mrazákem a myčkou. V kuchyni je i dostatek prostoru na stůl se židlemi. Obývací pokoj je vybavení jednoduchým nábytkem, držákem na televizor a skeletem na dvoulůžkovou postel. Dále zde najdete koupelnu se sprchovým koutem a toaletou, výhodou je komora s úložnými prostory a pračkou. Další úložné prostory poskytuje prostorný sklep. K bytu patří balkón, který je na mezipatře. V dosahu chůze je pro Vás připravena veškerá občanská vybavenost, dětská hřiště, restaurace, obchod. Cena pronájmu je 9.450,-Kč + zálohy na energie 2.426,- Kč. . RK + kauce V případě zájmu mě prosím kontaktujte telefonicky nebo do emailu, bude se na Vás těšit na prohlídce bytu.

Vybavení

Ikona Výtah Výtah Ikona Sklep Sklep Ikona Balkon Balkon

Lokalita

© 2025 Pronájem.cz, s.r.o.
by Media Heroes