Zadejte město

Výběr Dispozice

Omezit cenu

0 Kč - 110000 Kč

Zadejte město

Výběr Dispozice

Omezit cenu

0 Kč - 10000 Kč

Zadejte město

Výběr Druh

0 - 110140

Omezit Výměra

0 - 110140

Omezit cenu

0 Kč - 77250000 Kč
Ing. Michal Macháček Kontaktovat

Popis

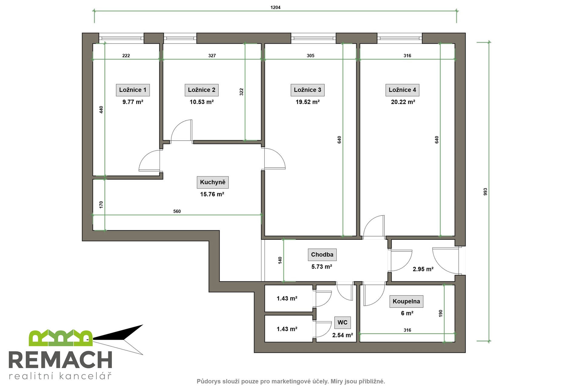
Ikona Výměra Výměra 92 m2 Ikona kalendář 18. 11. 2025
Zrekonstruované prostory k ubytování pro více osob jsou vybaveny kuchyňskou linkou s myčkou a dvěma lednicemi, troubou a dvěma elektrickými vařiči. Ubytování ve čtyřech neprůchozích pokojí, celkem je zde 13 postelí, šatní skříně a komody. Koupelna disponuje dvěma sprchovými kouty se dvěma umyvadly. Toaleta má dvě WC a umyvadlo. Vedle v budově se nachází obchod Hruška a pivnice. Parkovat je možno přímo u budovy.

Další vybavení

Ikona Bezbariérový Bezbariérový

Lokalita

© 2025 Pronájem.cz, s.r.o.
by Media Heroes