Bc. Lenka Lazurová, DiS. Kontaktovat

Komerční - ostatní | 80 m 2
Mimoň, Mimoň I, Pražská

15 000 Kč/měsíc včetně DPH, bez poplatků, + provize RK, včetně právního servisu
Ikona Výměra Výměra 80 m2 Ikona Zařízený Zařízený
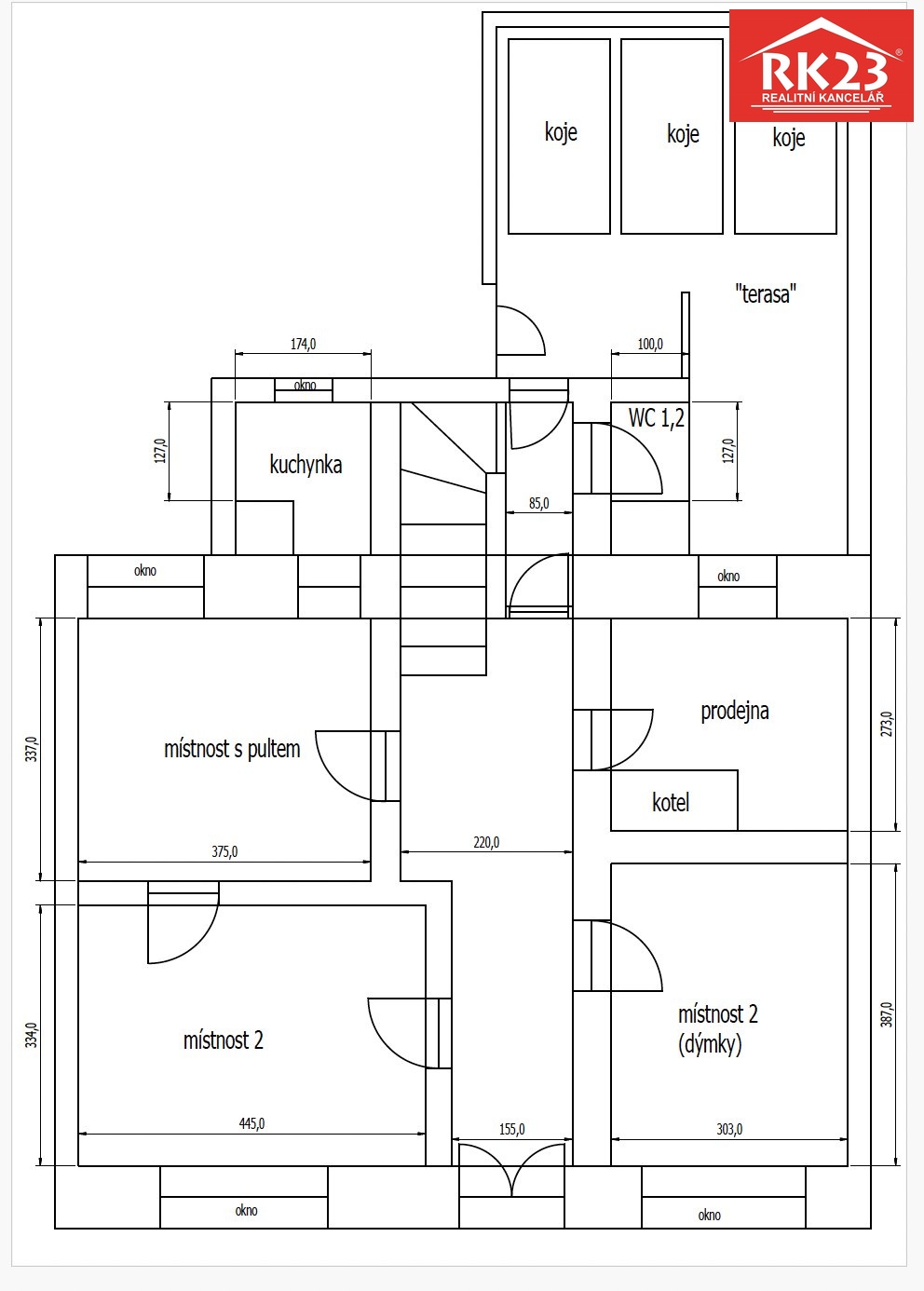
Nabízíme útulné prostory o celkové vnitřní ploše 80 m², k tomu zastřešená venkovní terasa a toalety v atraktivní lokalitě Pražská, Mimoň. Prostory se skládají z: komorního soukromého prostoru vhodného například pro menší kancelář nebo relaxační zónu, světlého hlavního prostoru s křesílky a židlemi, ideální pro kreativní či společenské využití, herny pro děti, kterou lze využít jako kavárnu, kreativní obchod, prostor pro jógu, cvičení s dětmi nebo jiné aktivity. Součástí je také zastřešená venkovní terasa, která prostor doplňuje a nabízí možnosti využití venku. Vybavení je zahrnuto v ceně pronájmu a k dispozici jsou 4 parkovací místa přímo u budovy. Finanční podmínky: Nájem: 15 000 Kč/měsíc + 1 měsíc dopředu Kauce: 15 000 Kč Elektrika: 2 500 Kč – odpočet podle spotřeby Voda: zdarma Vytápění: 2 500 Kč – odpočet podle spotřeby Provize RK: 15 000 Kč Prostory nabízejí útulnou, světlou a flexibilní atmosféru, ideální pro podnikatele, kteří hledají místo pro kavárnu, kreativní ateliér, workshopy, cvičení s dětmi nebo jiné originální využití.
Zobrazit celý popis

Vybavení

Ikona Vlastní parking Vlastní parking

Další vybavení

Ikona Bezbariérový Bezbariérový

Lokalita

© 2026 Pronájem.cz, s.r.o.
by Media Heroes