Zadejte město

Výběr Dispozice

Omezit cenu

0 Kč - 110000 Kč

Zadejte město

Výběr Dispozice

Omezit cenu

0 Kč - 10000 Kč

Zadejte město

Výběr Druh

0 - 110140

Omezit Výměra

0 - 110140

Omezit cenu

0 Kč - 20000000 Kč
Zuzana Wilczek, DiS. Kontaktovat

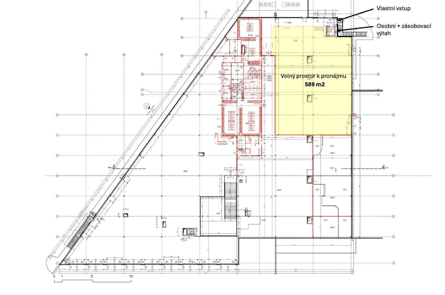
Komerční - obchodní prostory | 589 m2
Brno, Brněnské Ivanovice, Kaštanová

Popis

Ikona Výměra Výměra 589 m2 Ikona K nastěhování K nastěhování Ikona kalendář 27. 05. 2025
Pronájem obchodního prostoru o výměře 589m2, který se nachází ve 2.NP a má samostatný vstup přes venkovní schodiště a je také zajištěn bezbariérový vstup výtahem (osobní/zásobovací). Prostor sousedí na patře s nově otevřeným Fitness centrem Gymnation. Obchodní centrum nabízí široké možnosti využití – prostor je ideální pro maloobchod, showroom, služby, fitness studio nebo například ordinaci. K dispozici je klimatizace, vlastní sociální zázemí a možnost umístění viditelné reklamy na fasádu objektu. Samozřejmostí je bezbariérový přístup a dostatek parkovacích míst pro zákazníky, včetně vyhrazených stání pro osoby se sníženou pohyblivostí. Lokalita vyniká strategickou dopravní dostupností, v blízkosti jsou napojení na dálnice D1 a D2, a v pěší vzdálenosti je i zastávka MHD. V případě zájmu nás neváhejte kontaktovat.

Vybavení

Ikona Vlastní parking Vlastní parking

Další vybavení

Ikona Bezbariérový Bezbariérový

Lokalita

© 2025 Pronájem.cz, s.r.o.
by Media Heroes