Roman Musil Kontaktovat

Komerční - kanceláře | 500 m 2
Kunovice, Na Záhonech

info u RK volejte makléři, cena bez energií., bez DPH, bez poplatků, včetně právního servisu, cena k jednání
Ikona Výměra Výměra 500 m2 Ikona kalendář 1.2.2026 Ikona Zařízený Částečně zařízený
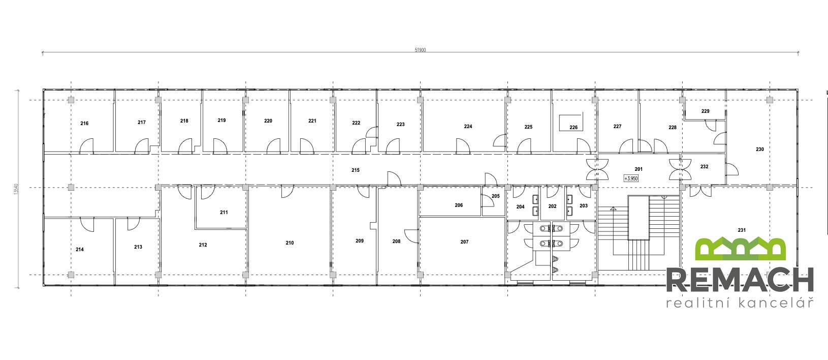
Pronájem kancelářských prostor – ulice Na Záhonech, Kunovice Nabízíme k pronájmu administrativní kancelářské prostory v komerčním areálu na ulici Na Záhonech v Kunovicích. Objekt prochází kompletní rekonstrukcí, která zajistí moderní standard a komfortní pracovní prostředí. Aktuálně je k dispozici 18 samostatných kanceláří různých velikostí. Prostory budou připraveny k nastěhování od února 2026. Výhody a vybavení: modernizovaná administrativní budova možnost parkování v areálu uzavřený a hlídaný areál – bezpečný přístup možnost pronájmu skladovacích či výrobních prostor ve stejném areálu vhodné pro firmy i živnostníky, sídla firem nebo servisní pracoviště Lokalita nabízí velmi dobrou dostupnost z hlavní komunikace a návaznost na průmyslovou část Kunovic. Ideální příležitost pro společnosti hledající kvalitní kancelářské zázemí s možností rozšíření o další provozní plochy. Rádi vám poskytneme více informací k dostupným kancelářím včetně půdorysů a cenových možností. Neváhejte nás kontaktovat pro rezervaci prostoru nebo schůzku.
Zobrazit celý popis

Vybavení

Ikona Vlastní parking Vlastní parking

Lokalita

© 2026 Pronájem.cz, s.r.o.
by Media Heroes