Zadejte město

Výběr Dispozice

Omezit cenu

0 Kč - 110000 Kč

Zadejte město

Výběr Dispozice

Omezit cenu

0 Kč - 10000 Kč

Zadejte město

Výběr Druh

0 - 110140

Omezit Výměra

0 - 110140

Omezit cenu

0 Kč - 77250000 Kč
Valerie Kosíková Kontaktovat

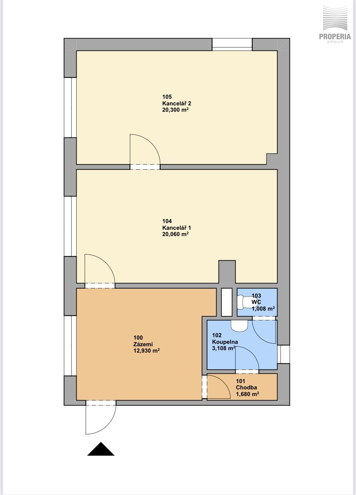
Komerční - kanceláře | 59 m2
Brno, Žabovřesky, Voroněžská

Popis

Ikona Výměra Výměra 59 m2
Nabízíme k pronájmu prostorný ateliér/kancelářský prostor o výměře 59 m² na ulici Voroněžská v městské části Brno–Žabovřesky. Prostor se nachází v 13. patře panelového domu – výtah jede do 12. patra, do 13. patra vede krátké schodiště. Díky tomu má nájemce naprosté soukromí, protože v tomto patře se žádné další jednotky nenacházejí. Dispozice a velikost umožňují využití například jako sídlo menší firmy, IT pracoviště, projekční kanceláře nebo administrativního zázemí pro 5–6 osob. Ateliér je v původním, udržovaném stavu, což se promítá i do zvýhodněné nabídky – sleva 20 % z čistého nájemného po dobu prvních tří měsíců nájmu, aby si nájemce mohl prostor upravit dle své libosti. Měsíční nájemné činí 20.000,-Kč měsíčně + zálohy na služby a energie 2.600,-Kč měsíčně.Prostor je vhodný k dlouhodobému pronájmu. Pronajímatel vyžaduje jednu vratnou kauci. Ateliér je volný ihned. Pokud Vás tato nabídka zaujala, neváhejte si domluvit osobní prohlídku.

Lokalita

© 2025 Pronájem.cz, s.r.o.
by Media Heroes