Zadejte město

Výběr Dispozice

Omezit cenu

0 Kč - 110000 Kč

Zadejte město

Výběr Dispozice

Omezit cenu

0 Kč - 10000 Kč

Zadejte město

Výběr Druh

0 - 110140

Omezit Výměra

0 - 110140

Omezit cenu

0 Kč - 20000000 Kč
Zuzana Wilczek, DiS. Kontaktovat

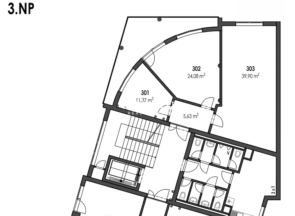
Komerční - kanceláře | 40 m2
Brno, Černovice, Klíčova 1277

Popis

Ikona Výměra Výměra 40 m2
Nabízíme k pronájmu kanceláře v 3.NP administrativního objektu na ulici Klíčová o ploše 40 m2. Prostory jsou vybaveny klimatizací, mají otevíratelná okna, v budově jsou výtahy, zabezpečovací systém, zátěžové koberce, v celé budově je bezbariérový přístup. Je zde možnost parkování na vyhrazeném parkovišti za objektem a v garáži. Ihned k nastěhování. Jedná se o kancelář 303. Budova se nachází v blízkosti centra Brna (2-3 zastávky tramvají), nedaleko objektu jsou zastávky MHD Tržní (3 minuty chůze) a Životského (5 minut chůze). Na nedaleké ulici Křenová se nachází několik restaurací české i mezinárodní kuchyně a další obchody a služby. Rádi pro Vás připravíme nabídku kancelářských prostor na míru v Brně. Máme přístup k neveřejným nabídkám.

Vybavení

Ikona Vlastní parking Vlastní parking

Další vybavení

Ikona Bezbariérový Bezbariérový

Lokalita

© 2025 Pronájem.cz, s.r.o.
by Media Heroes